Parmi les compétences obligatoires des communautés de communes et communautés d’agglomération, renforcées par la loi NOTRe figure celle du développement économique et notamment la création, l’aménagement, l’entretien et la gestion de zones d’activité industrielle, commerciale, tertiaire, artisanale, touristique, portuaire ou aéroportuaire.
Les Zones d’Activités Économiques sont les vecteurs du développement des entreprises, créatrices d’emplois. Au regard de l’aménagement du territoire, l’activité économique est un facteur d’attractivité du territoire qui interpelle les pouvoirs publics.
L'accueil d'entreprises se fait aujourd'hui essentiellement sur des parcs dédiés à l'activité économique. Il s'agit pour l'essentiel de zones industrielles, artisanales ou commerciales, qualifiées de zones d'activités économiques (ZAE).
Afin de répondre aux besoins des entreprises locales, la Communauté de communes Pyrénées catalanes gèrent et aménagent les parcs d'activités du Capcir [à Matemale] et de Haute Cerdagne [à Font-Romeu].
LA ZAE DU CAPCIR
Adresse: RD 118 - Lieu dit « Coume Del Canal » - 66210 MATEMALENombre de parcelles: 8
A ce jour 4 parcelles sont disponibles à la vente.
Coût du m² HT: 30 à 40 € selon la parcelle.
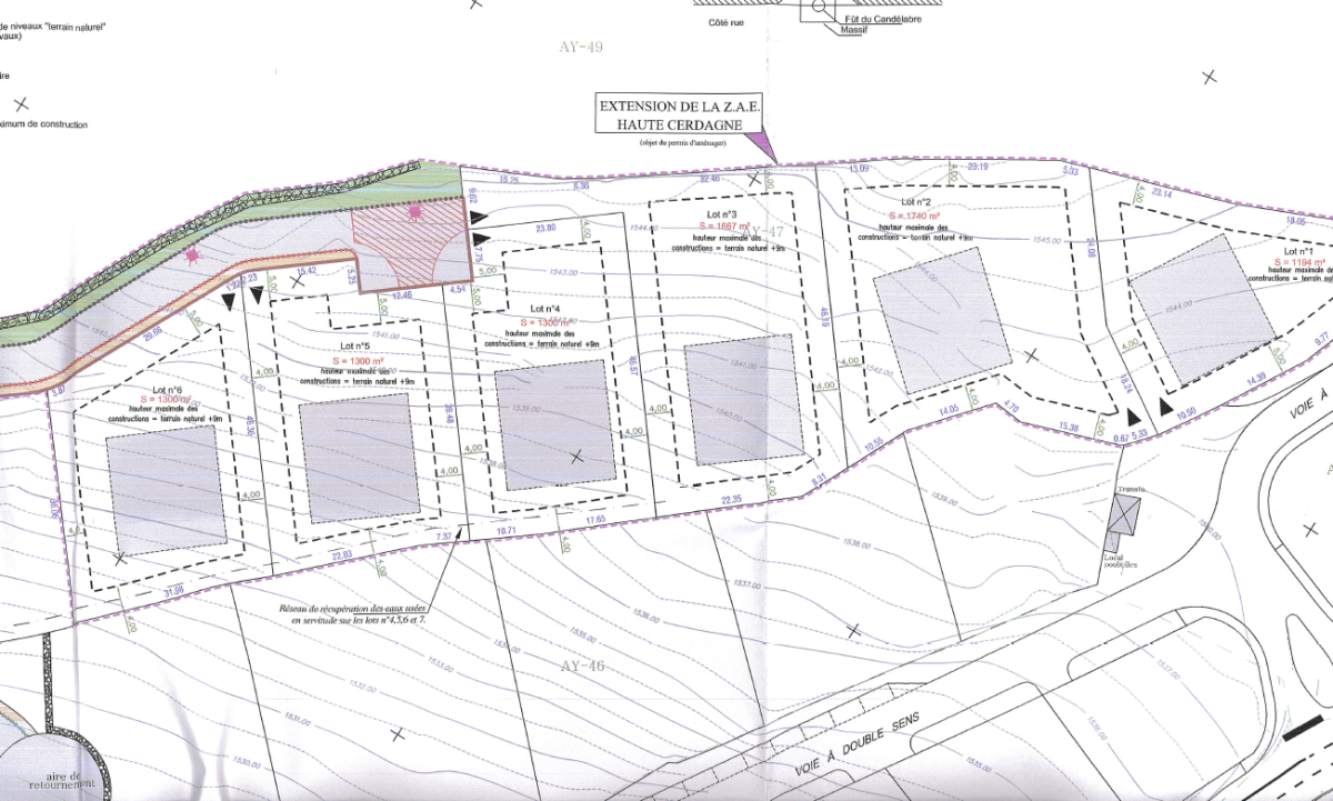
LA ZAE DE HAUTE CERDAGNE
Adresse: Lieu-dit "El Castella" - 66210 ODEILLO (commune de Font-Romeu)
Nombre de parcelles: 23 [17 sur la tranche 1 + 6 sur la tranche 2]
Superficies des parcelles : de 96 à 1800m²
A ce jour 12 parcelles sont disponibles à la vente
Coût du m² HT : entre 55 et 75€ selon la parcelle.

